Electrical circuit detail elevation 2d view CAD blocks autocad file
Description
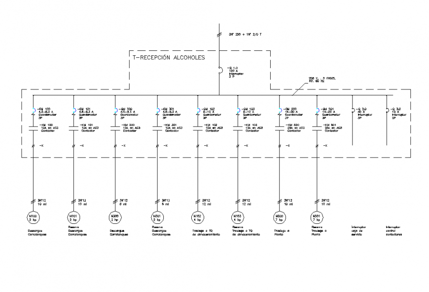
Electrical circuit detail elevation 2d view CAD blocks autocad file, wire detail, voltage detail, postive and negative volt detail, naming detail, etc.
Uploaded by:
Eiz
Luna

